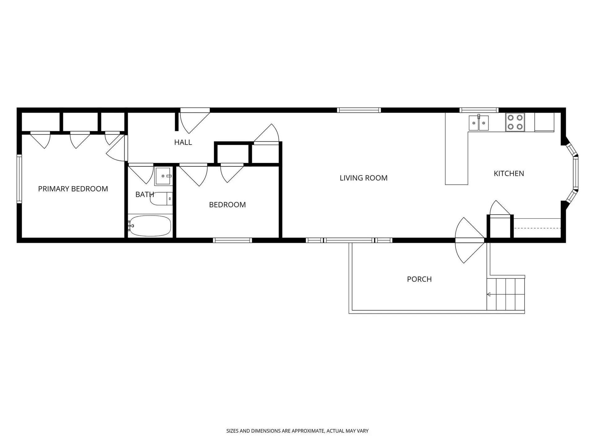
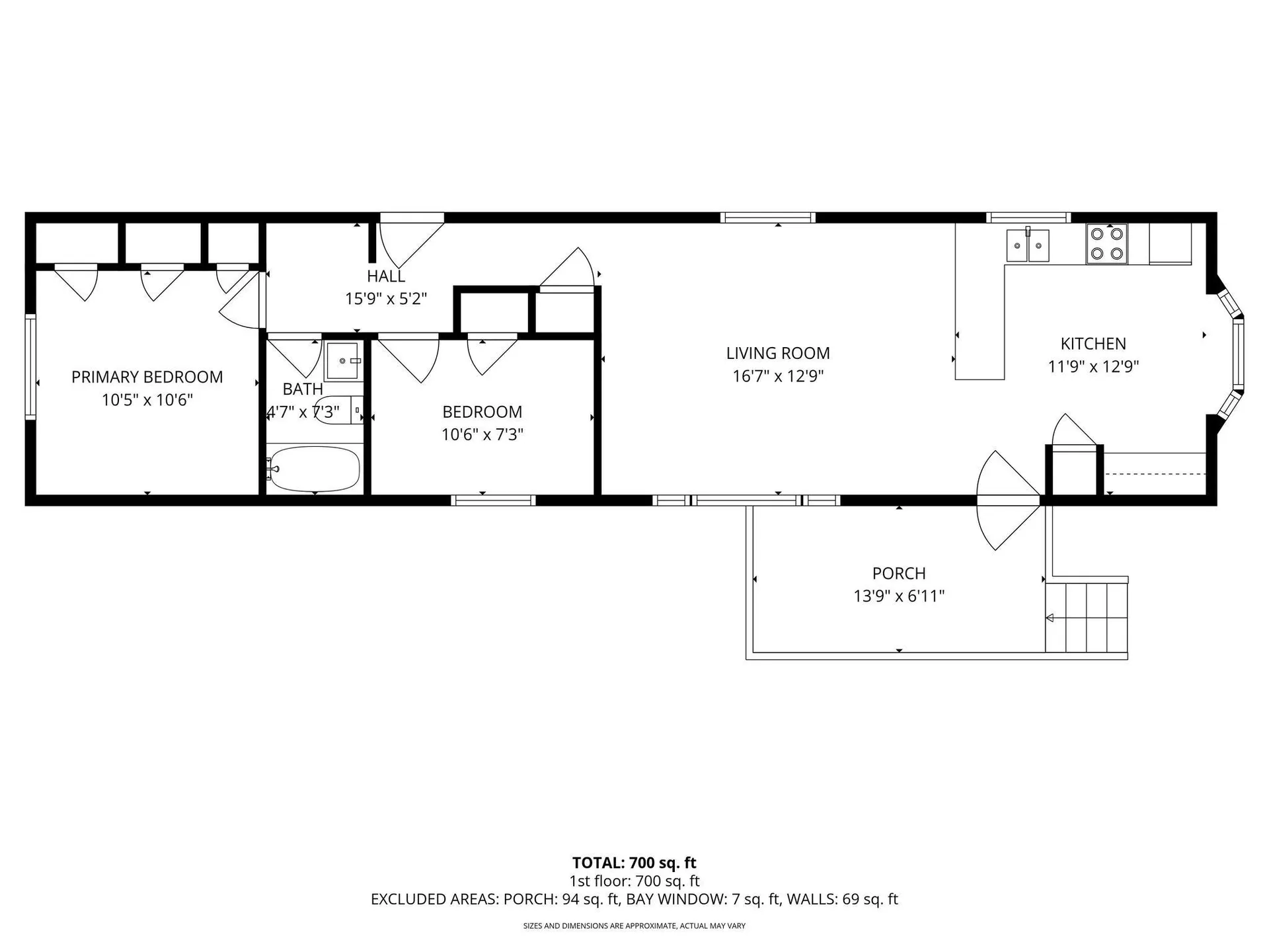
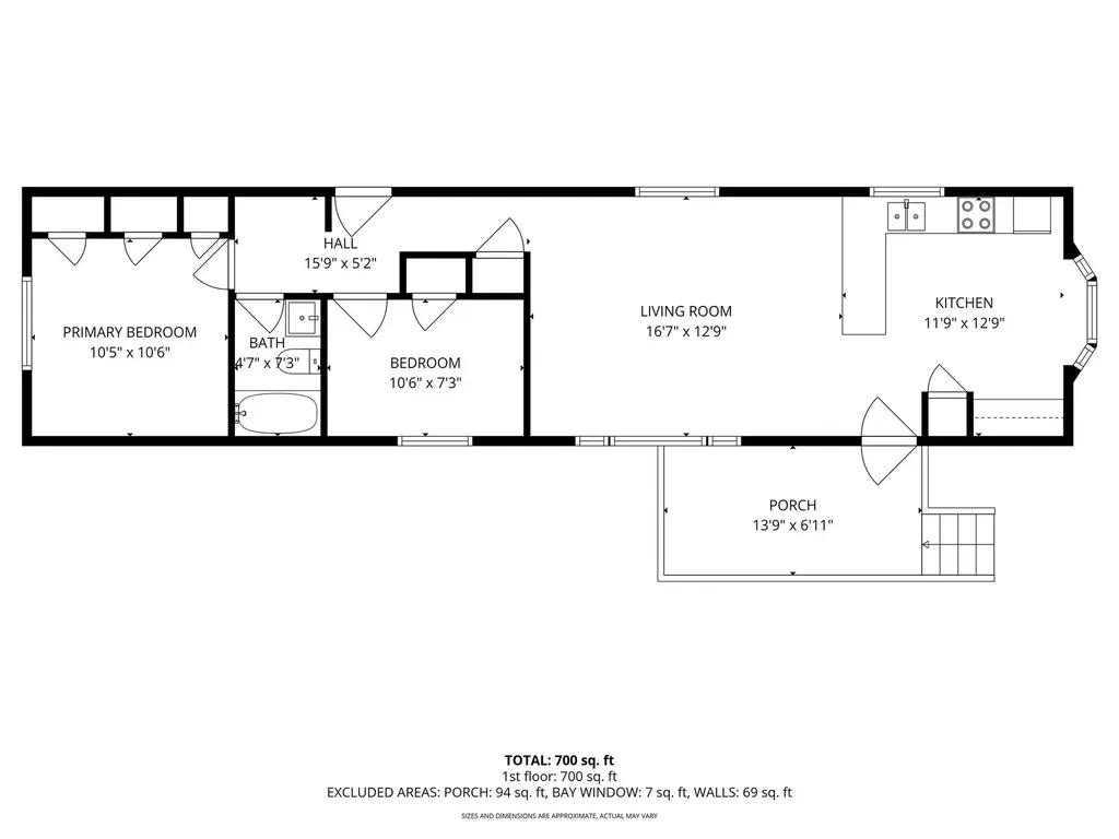
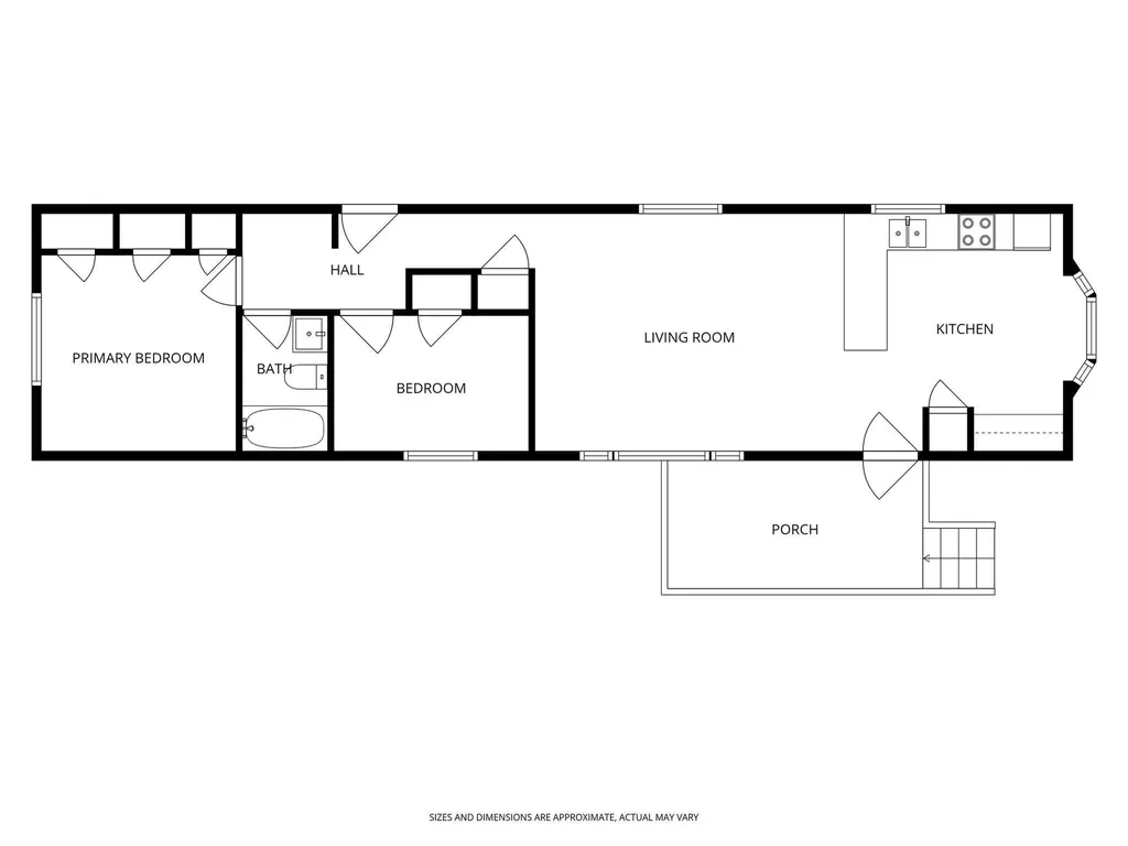
Welcome home to 27 Melrose Drive, located in the desirable Ridgewood Park community. This beautifully updated 2004 Skyline mobile home offers comfort, style, and low-maintenance living-an ideal opportunity for those seeking an affordable, move-in-ready home in a convenient location. The home features two spacious bedrooms and one full bathroom in a well-designed 14' x 56' layout, offering approximately 784 square feet of comfortable living space. Recent upgrades enhance both functionality and style, including all-new stainless steel kitchen appliances, luxury vinyl plank flooring throughout the main living areas, and brand-new carpeting in both bedrooms. Additional improvements include updated PEX plumbing, a brand-new water heater, and new plumbing fixtures throughout. Central air conditioning and a forced hot air furnace provide year-round comfort and efficiency. Outdoor living is just as inviting, with a large deck perfect for relaxing or entertaining, a private storage shed, and a nicely maintained lawn area. The paved driveway offers parking for two vehicles. Conveniently located just minutes from shopping, dining, and major commuter routes, this home provides the perfect balance of comfort, convenience, and easy living. Don't miss your chance to own this beautifully maintained and thoughtfully updated home in Ridgewood Park-schedule your private showing today!

Listing Tools

Property Details of 27 Melrose Drive

Property Details

Interior Features

Exterior Features

Utilities and Appliances

Community

Other Details

Map Location

Broker Reciprocity 

Copyright 2026 PrimeMLS, Inc. All rights reserved. This information is deemed reliable, but not guaranteed. The data relating to real estate displayed on this display comes in part from the IDX Program of PrimeMLS. The information being provided is for consumers’ personal, non-commercial use and may not be used for any purpose other than to identify prospective properties consumers may be interested in purchasing. Data last updated February 15, 2026 4:07 AM EST

 

Hi there! How can we help you?

Contact us using the form below or give us a call.

Send Us A Message:

I agree to receive marketing and customer service calls and text messages from Black House Real Estate. To opt out, you can reply 'stop' at any time or click the unsubscribe link in the emails. Consent is not a condition of purchase. Msg/data rates may apply. Msg frequency varies. Privacy Policy.

Do not fill in this field:

This site is protected by reCAPTCHA and the Google Privacy Policy and Terms of Service apply.